腻烦了都市办公室,他们去郊区,在”小树林"里上班
文:ad110
|
发表于 2015-10-26
Mamiya Shinichi 设计工作室 在名古屋郊区一条公路旁建立起了自己的新办公室。他们利用木结构打造出一个鼓励团队成员积极沟通的空间。

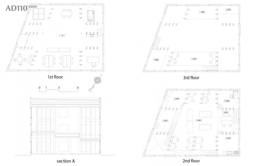
整个建筑中利用30根木柱代替承重墙,高度自由分布的木材楼板允许人在办公室中灵活的定义办公空间。四个立面采用经典的方形开窗。这三个要素整体组合在一起呈现出让人惊艳的形式与功能。人们在空间中宛如身处小树林–丰富,不同寻常,阳光明媚。



设计 : Shinichi Mamiya / MAMIYA SHINICHI DESIGN STUDIO
团队 : Shinichi Mamiya + Rintaro Kakeno / MAMIYA SHINICHI DESIGN STUDIO
摄影: Toshiyuki Yano and MAMIYA SHINICHI DESIGN STUDIO
项目地点 :日本爱知县
整体建筑面积 : 250.02m2